7839 Euler Way
Charlotte, NC 28214
$326,000 Active
Subdivision: Wilson Glen

Welcome to this beautifully updated home! The interior boasts a fresh coat of neutral paint, creating a calming ambiance throughout. The kitchen features all stainless steel appliances and an elegant accent backsplash. The primary bathroom includes a separate tub and shower, along with double sinks for added convenience. Cozy up next to the fireplace on chilly evenings. Step outside to enjoy the spacious patio, perfect for relaxing or entertaining. The fenced-in backyard provides privacy and ample space for outdoor activities. This home is a must-see!. Included 100-Day Home Warranty with buyer activation

Request More Info:

Basic Information
MLS#: 4324643
Price: $326,000
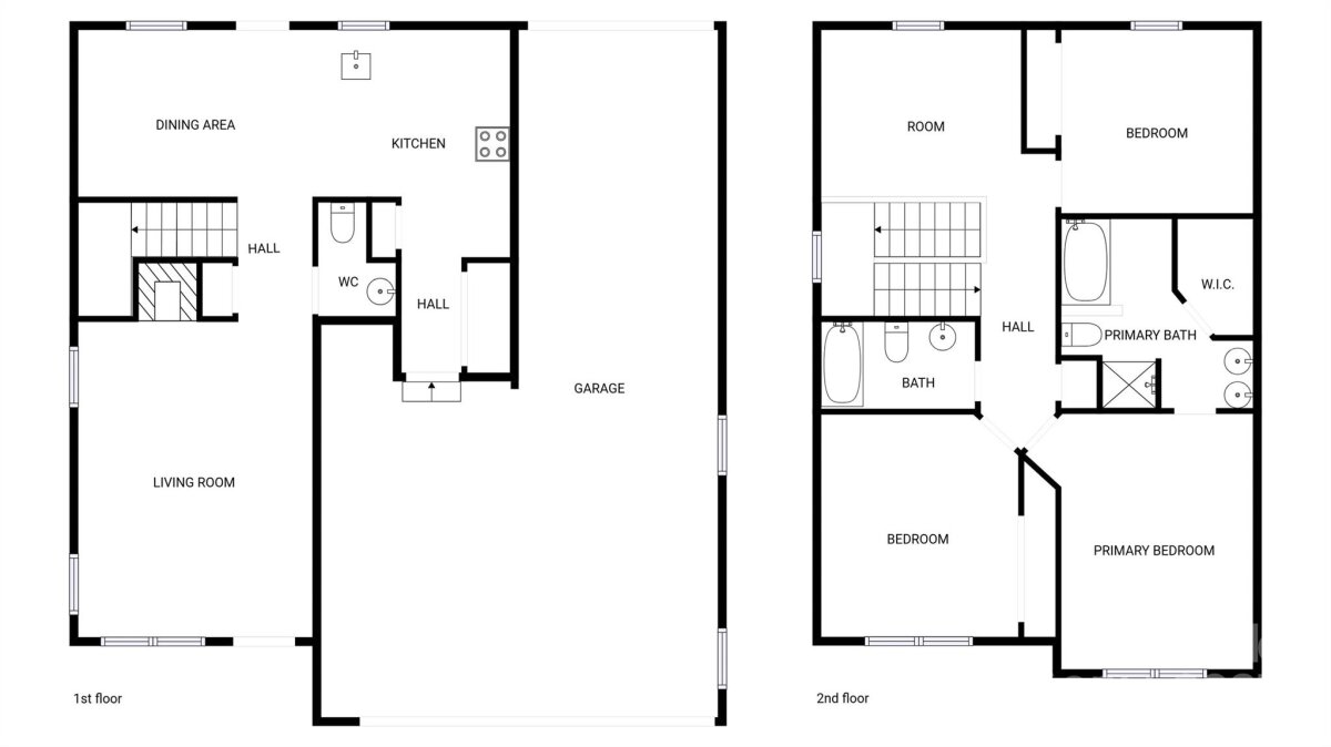
Square Footage: 1,682
Bedrooms: 3
Bathrooms: 2 Full, 1 Half
Acreage: 0.16
Year Built: 2001
Elementary School: Whitewater Academy
Middle School: Whitewater
High School: West Mecklenburg
Details
Waterfront/water view: No
Parking: Driveway,Attached Garage,Parking Space(s)
HVAC: Central,Natural Gas
HOA: $127 / Annually
Main level:   Bathroom-Half
Upper level:   Bonus Room
Listing Courtesy Of: Opendoor Brokerage LLC - ahorne@opendoor.com

Follow us!


Terms of use/DMCA