653 Moonlight Pass
Union Mills, NC 28167
$519,000 Active
Subdivision: Hearthstone Ridge

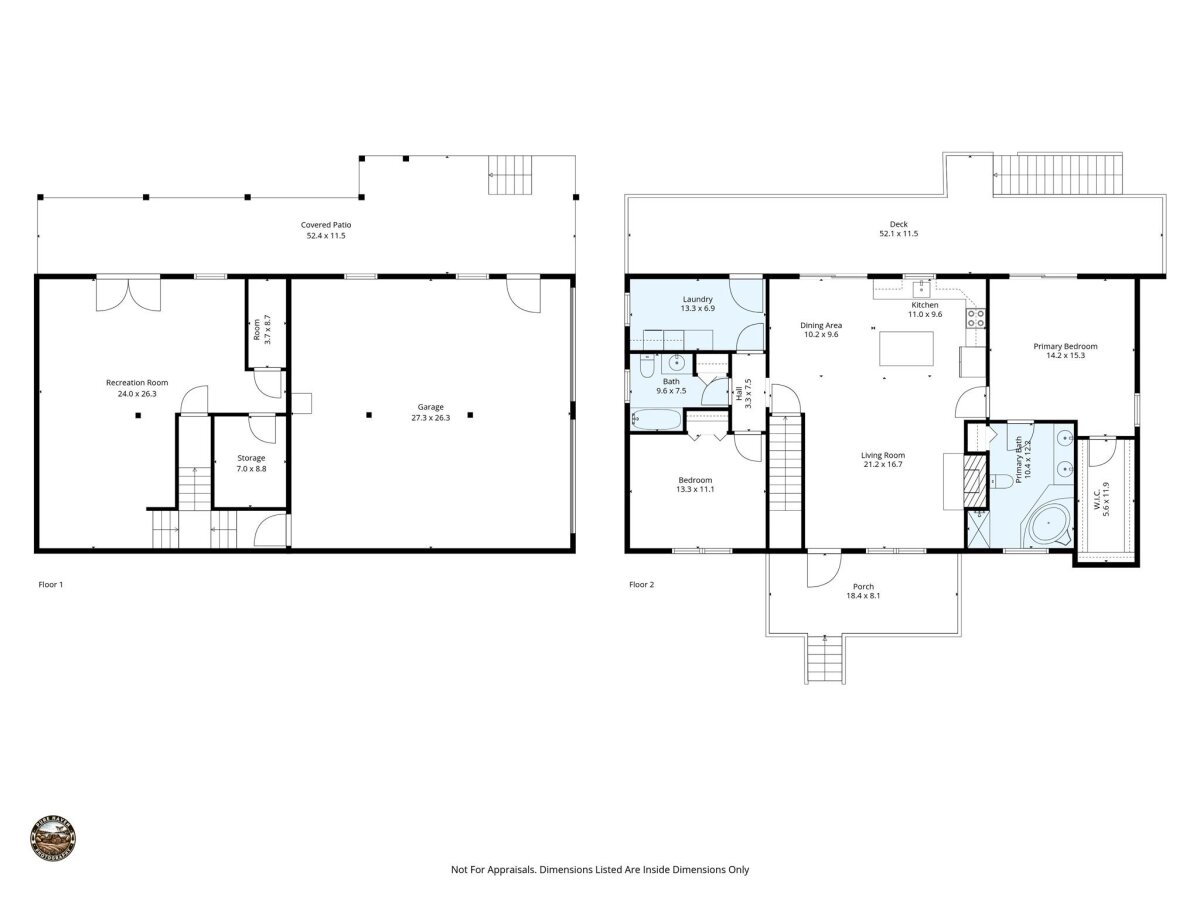
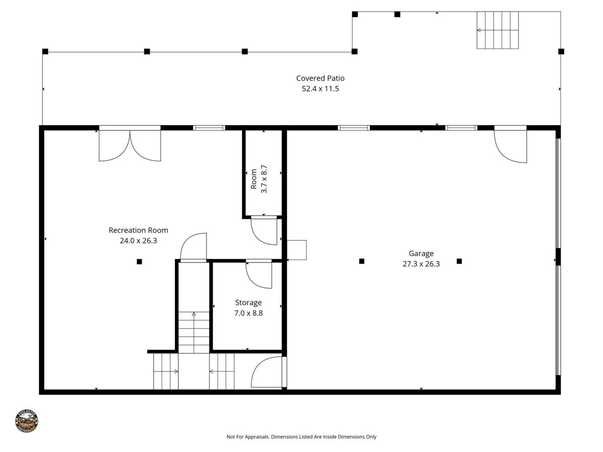
Welcome home! This beautiful log sided home located in the very desirable gated community Hearthstone Ridge has so much to offer. First time on the market, this home is well maintained. Once you enter the front door you will find an open concept, perfect for entertaining. The living room has a 42" woodburning rock fireplace, vaulted ceiling, hardwood floors. The kitchen has granite countertops with tall custom cabinets for extra storage. Sliding doors from the dining area leading out onto the covered porch which extends the entire length of the home. In the primary suite which also has sliding doors leading to the back porch, there is a walk-in closet, ceramic tile bathroom has jacuzzi tub, separate shower, double sink granite vanity. The second bedroom has hardwood floors with plenty of closet space. Bathroom is located in hallway also has granite top vanity and shower. Laundry room is spacious and has a door leading onto the back porch. Downstairs in the basement is the third bedroom currently being used as a multipurpose room. Rough in plumbing ready for a bathroom to be completed. Storage room in basement. The oversized double car garage is big enough for cars and storage. Don't forget about the outside detached 12 X 24 shed with electricity ran to it. This beautiful home sits on 4.6 acres of beauty! Located close to Hwy 221, Interstate 40 and I-26. You are close enough to restaurants, shopping and entertaining but in a secluded setting. This home will not last long!

Request More Info:

Basic Information
MLS#: 4317464
Price: $519,000
Square Footage: 1,993
Bedrooms: 3
Bathrooms: 2 Full
Acreage: 4.6
Year Built: 2017
Elementary School: Unspecified
Middle School: Unspecified
High School: Unspecified
Details
Waterfront/water view: No
Parking: Basement,Driveway,Attached Garage
HVAC: Heat Pump
Basement:   Bedroom(s)
Main level:   Laundry
Listing Courtesy Of: Odean Keever & Associates, Inc. - lola.barnes21@yahoo.com

Follow us!


Terms of use/DMCA